Skip to content
Here in Van Nuys
andrewbhurvitzshortstories.org
design
AI Creates Lovely Houses.
Walking Along the 6th Street Bridge.
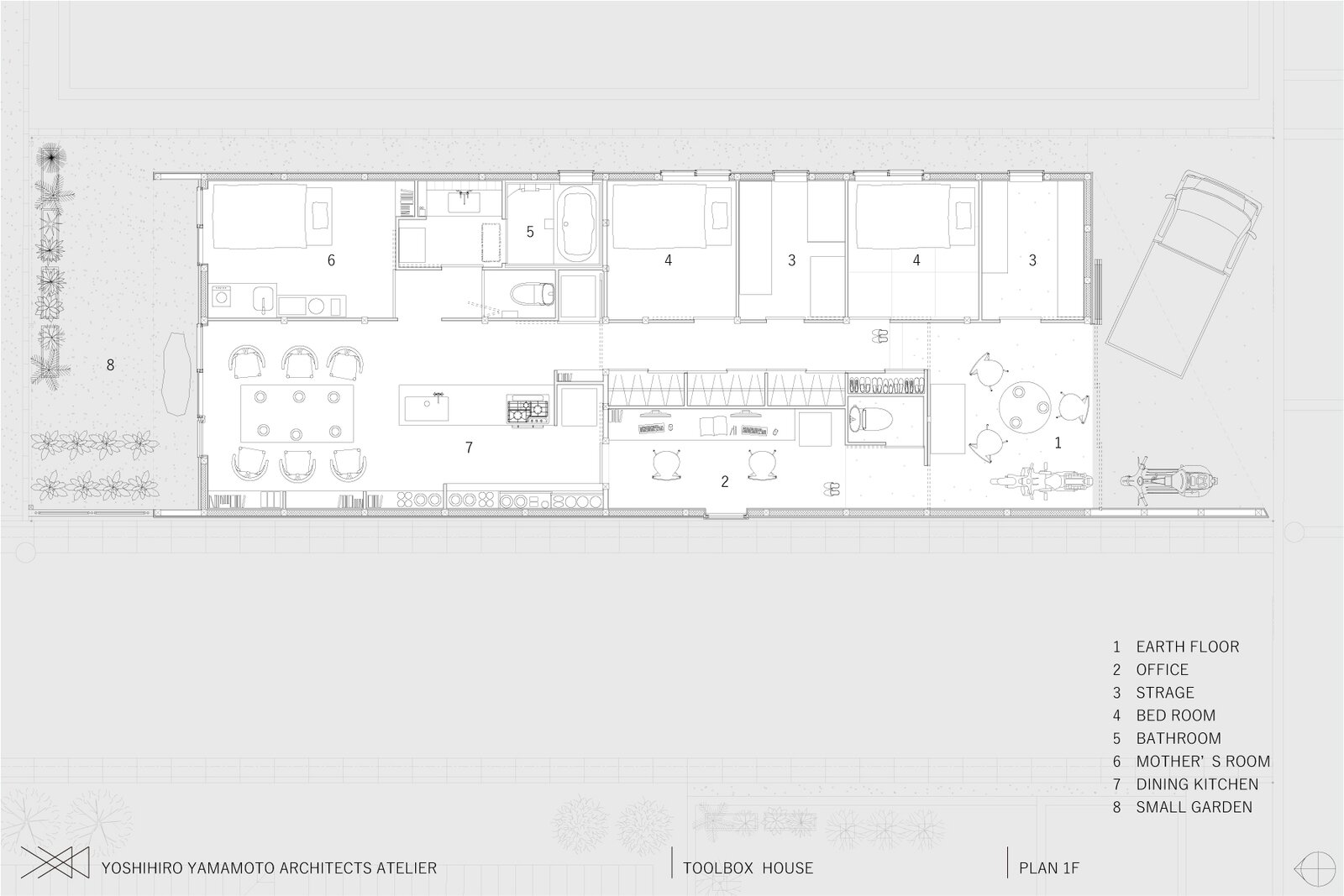
The Toolbox House, Osaka, Japan.
A Motley Crew: The New ADUs
Not Van Nuys Blvd at Oxnard
Sepulveda Fantasy
Glamorous Granny Flat.
Populating Van Nuys with Fine Architecture
Letter from an Old, Practicing Architect in Los Angeles
Anti-Family Planning.
Architects in Mexico Design Homes that Help Women and Families.
“Walkville” Opens in North Hollywood
1
2
Next Page
Subscribe
Subscribed
Here in Van Nuys
Join 320 other subscribers
Sign me up
Already have a WordPress.com account?
Log in now.
Here in Van Nuys
Subscribe
Subscribed
Sign up
Log in
Report this content
View site in Reader
Manage subscriptions
Collapse this bar